Clay Corner
Clay Corner
                        South Western Facade —
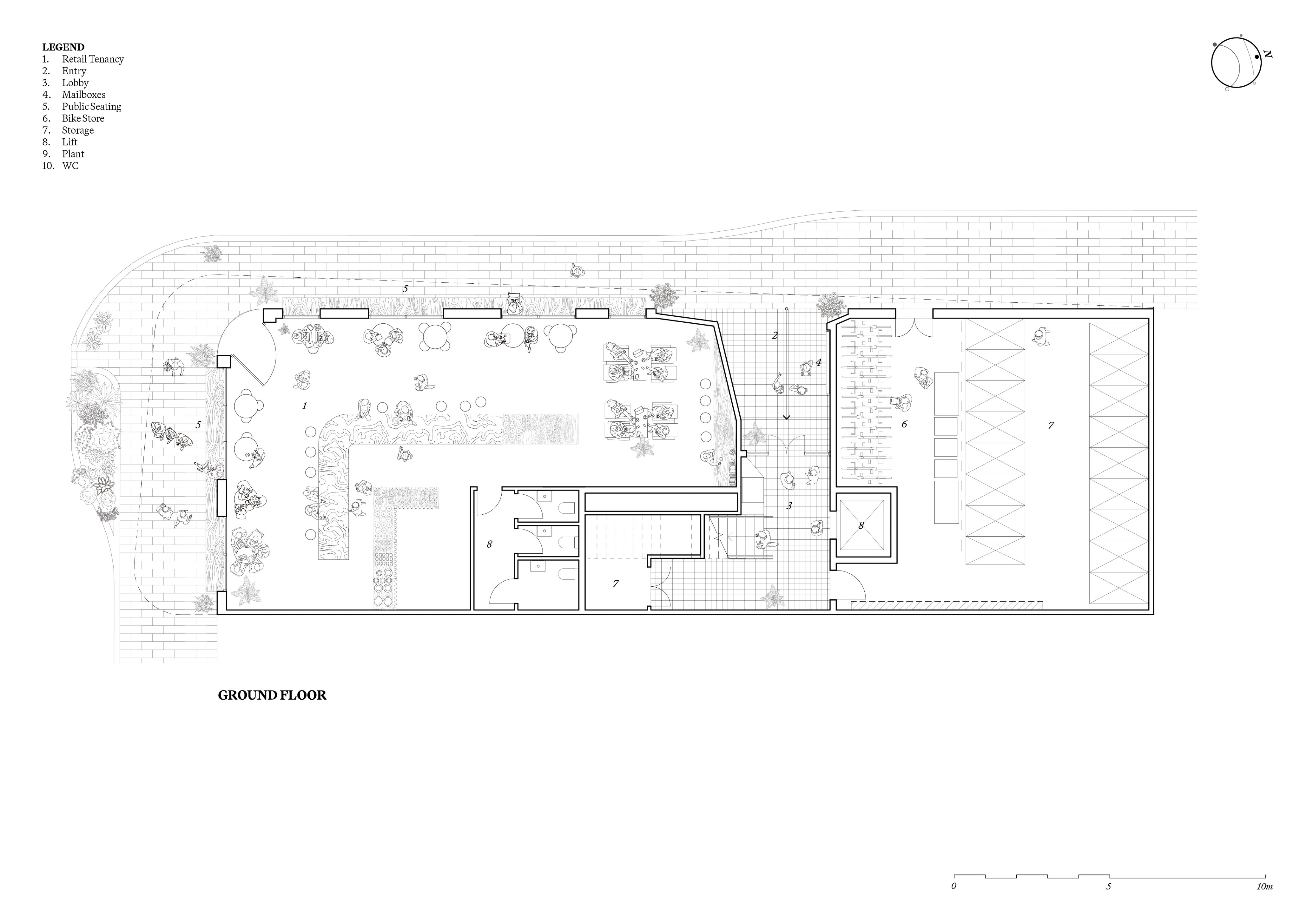
                        Retail Tennacy — providing public & commercial seating. Blurring the lines between public and private.
                        Western Facade — Entry sculpted out of the terrazzo plinth.
                        Interior — Kitchen, Dining & Living.
                        Interior — Kitchen, Dining & Living.
                        Interior — Corner Bedroom.
                        Interior — Bathroom with western light shining through.
                        Heavy Materials — Reflecting the existing brick building & Ōtepoti's Heritage.
                        Light Material — Cross Laminated Timber Construction
Discovery —
                        Ōtepoti — Context study
                        Existing Site Condition — Brick gabled building
                        Historic Images — Chinese Mission Hall Plans
                        Historic Photographs — Chinese Mission Hall
                        Site Plan – Walking distances to the University, the Octagon and the train station.
Concept Design —
                        Concept Drivers — The concept for the building’s aesthetic has foundations in Ralph Hotere & Bill Culbert 'Backwater' series.
                        Concept Drivers — Extracting the key elements from the blackwater series to create an architectonic framework.
                        Concept Drivers — The concept for the building’s aesthetic has foundations in, and is led by the existing structure on the site, local landscape colours, urban conditions, mixed with the blackwater series.
                        Concept Drivers — Contextual local massing studies.
                        Concept Diagrams —
                        Concept Sketch — Lightly Weighted gives Ralph Hotere’s distinctive explorations into darkness and depth, and Bill Culbert’s signature fluorescent tubes a play on the strong tension between light and dark, lightness and mass, texture and void.
                        Concept Imagery — View from the south-west.
                        Concept Imagery — Street edge Terrazzo seating.
                        Circularity — Strategy for using and reusing local materials.
Preliminary Design —
                        Preliminary Design — Image from the South-west
                        Interiors — Apartment looking west
                        Interiors — Lobby
                        
                        
                        
                        Developed Design —
                        Circularity — Reusing the existing brick building and turning it into Terrazzo
                        Circularity — Terrazzo testing.
                        Mateiral Pallet — Interiors
                        Mateiral Pallet — Interiors
                        Mateiral Pallet — Exterior
                        Cross Laminted Timber — Building built with CLT structure.
                        Axo View — From the South-East
                        View from Hanover Street.
Information
- 
                    
Client
Other Places
 - 
                
Location
Ōtepoti, Dunedin
 - 
                
Year started
2021
 - 
                
Status
Developed Design
 
A proposed development in central city Dunedin, Clay Corner is a multi-residential development with a supplementary ground floor commercial use on the corner of Hanover and Filleul Streets.
The intention for Clay Corner was a best-in-class example of socially and environmentally sustainable apartment city living for Ōtepoti, Dunedin and New Zealand.
The makeup —
The building consists of sixteen 1-2 bed apartments, a commercial unit and vertical circulation that spans the six levels encouraging chance encounters. The positioning and design of the building encourages sustainable transport, through an active vertical circulation, bike parking, and a strong connection to the majority of amenities required for work, life, and play – as well as being in close proximity to public transportation options.
The design aims to limit impact on the environment through the promotion of low carbon materials and building systems, employing methodologies such as mass timber construction, off-site manufacture (e.g. cassette wall and roof panels), photovoltaics, passive façade design, efficient water and lighting fixtures and optimised glazing ratios.
The building is seeking a Homestar 7 rating, and the project is a part of the Mid-Rise Wood Construction Programme backed by the Ministry for Primary Industries and Red Stag Investments to deliver case studies in mass timber innovation for the New Zealand Industry – further impacting a broader environmental agenda. 
- Key Spaces
 - 16 Apartments (1 & 2 Bedroom)
 - Ground Floor commercial tennancy
 - Shared storage and bike parking
 - Rooftop Terrace
 
The design —
The concept for the building’s aesthetic has foundations in, and is led by the existing structure on the site, local landscape colours, urban conditions, and an artist collaboration between Ralph Hotere and Bill Culbert: two prominent artists who held a deep connection with Ōtepoti Dunedin throughout their lives. Their work ‘Blackwater’ deploys both Hotere’s distinctive explorations into darkness and depth, and Culbert’s signature fluorescent tubes to create a strong tension between light and dark, lightness and mass, texture and void. These qualities are seen separately in both the Dunedin City context through heavy mass colonial built heritage, and contemporary construction and lightweight material methodologies of assemblage.
The building design for Clay Corner endeavours to play with these notions in contrast, by exploring how an innovative and lightweight mass timber construction method can host an appearance which is at once heavy, while revealing its lightweight reality. 
The result —
It is hoped that the development will foster a strong sense of community: authentically contributing to the cultural and social sphere of Ōtepoti, and providing the city with a typology of housing and way of life that currently does not exist in the city.
A welcome, needed, and timeless addition to the skyline of Ōtepoti that celebrates the unique character of the city.
Project Team —
Geotechnical Engineer — Initia
Surveyor — Terramark
Sustainability Consultant — Finding Infinity
Planner — 4Sight
Traffic Engineer — Modal Consulting
Quantity Surveyor — Logic Group
Structural Engineer — PTL
Facade Engineer — BG&E
Acoustic Engineer — Marshall Day
Fire Engineer — Crossfire
Visualisations — CUUB
Cross Laminated Timber — Red Stag Timber
Construction — Cook Brothers